Motorboot Manhattan 73 mieten Frankreich Mittelmeer

1400 HP 2013 22.6 m
6 Liege 3 Kabinen 3 Bad

Wichtigste Ausstattungsmerkmale
TV Stand-Up Paddle Schnelligkeit Manövrierfähigkeit Bewohnbarkeit

Dieses Boot wird mit einer Besatzung gemietet
Für einen erstklassigen Hotelservice mehr+

Mietbedingungen
Es wird keine Kaution verlangt Gültiger Personalausweis oder Reisepass erforderlich
Technische Eigenschaften - Manhattan 73
Modell: Manhattan 73
Hersteller: Sunseeker
Baujahr: 2013
Gesamtlänge: 22.6 m
Breite (bau): 5.73 m
Tiefgang: 1.6 m
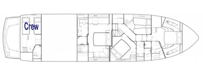
Einrichtung des Bootes - Manhattan 73
Zugelassene Schlafplätze: 6
Kabinen mit1 Doppelbett : 3
Kabine Besatzung: 1
Badezimmer (WC + Dusche): 3
WC & Duschen für die Besatzung: 1
Hinweis: der Comfort kann von von Kabine zu Kabine unterschiedlich sein
Ausstattungen - Manhattan 73
TV
Stand-Up Paddle
Radio
Beiboot
Außenbordmotor
Sie gehen auf Kreuzfahrt mit einer professionellen Crew (Kapitän, Koch...)
Konditionen
Wichtige Informationen
Keine Kaution für diese Miete erforderlich
Trinkgeld für die Crew
Nicht inklusive
Formalitäten - vorgeschriebene und andere Dokumente
Gültiger Personalausweis oder Reisepass erforderlich
Versicherungen
Obligatorische Kautionsablösung, wenn Sie einen professionellen Skipper buchen
Versicherungen: alle angebotenen Boote sind gegen alle Risiken versichert
Wir empfehlen Ihnen jedoch, unsere Reiserücktrittsversicherung und / oder Kautionsrückkaufversicherung abzuschließen mehr+
Die Fotos und Informationen in diesem Bootsdatenblatt sind nicht vertraglich bindend.
Kundenrezensionen
Das Boot
Dieses Boot wurde bisher noch nicht von einem unserer Kunden bewertet
Der Partner
Dieser Partner wurde noch nicht von einem unserer Kunden bewertet
Informationen über den Partner
Geschäftshistorie mit Filovent
Neuer Filovent-Partner, noch keine Geschäftshistorie.
Mit Filovent buchen Sie entspannt Ihren Urlaub am Meer
UNSERE VERPFLICHTUNGEN
CÔTE D'AZUR : Erfahrungsberichte unserer Kunden
Reiseplan für einen einwöchigen Segeltörn zwischen der Côte d'Azur und Italien
Letzte Aktualisierung 24 Jan 2024
Entdecken Sie die Segelroute von Christophe, der in Saint-Raphaël gestartet ist, um entlang Côte d'Azur bis nach Italien zu segeln.
Rundreise durch die Hyeres-Inseln ab Antibes
Letzte Aktualisierung 21 Apr 2023
In diesem Artikel finden Sie das Interview mit Emmanuel nach seiner Rückkehr aus dem Urlaub. Emmanuel ist mit seiner Familie zu den Hyeres-Inseln gereist und gibt Ihnen alle seine Tipps für eine erfolgreiche Segelwoche im Mittelmeer!
Standort
Tarife
Kontaktieren Sie uns für die PreiseNehmen Sie Kontakt mit unseren Beratern auf, um Ihre zukünftige Reise zu finden
- Einer unserer Berater wird sich so bald wie möglich mit Ihnen in Verbindung setzen.
- Sehen Sie sich unsere Vorschläge in Ihrem Kundenbereich an.