Yacht charter Sailboat Farr 60 Sweden
Good
1 customer reviews,
note on 10
7,3

1997 18.36 m
8 berth 4 cabin 4 SDB

Main facilities
Desalination system Bow thruster Mainsail on furler Spacious deck Habitability Clear cockpit

A skipper is required
For this boat, we require you to book a professional skipper.
see+
Charter conditions
No deposit will be required Valid national identity card or passport required
Technical characteristics - Farr 60
Model: Farr 60
Manufacturer: FARR
Year of construction: 1997
Mainsail: Mainsail on furler
Total length of the boat: 18.36 m
Width (beam): 5.48 m
Draft: 2.75 m
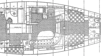
Boat layout - Farr 60
Approved berths: 8
Daily capacity: 12
Cabs with 1 double bed : 3
Cabin with 2 bunk beds : 1
Crew cabin: 1
Bathrooms (toilet + shower): 4
Note: the level of comfort may vary from one cabin to another.
Facilities - Farr 60
Desalination system
Bow thruster
Mainsail on furler
Refrigerator
Chart table GPS plotter
Dinghy
A skipper is required
Conditions
Important information
No deposit required for this charter
Formalities - compulsory and other documents
Valid national identity card or passport required
Insurance
Compulsory deposit refund if you take a professional skipper
Insurance: all the boats offered are fully insured
However, we advise you to take out our Cancellation insurance and/or security deposit redemption insurance see+
The photos and information on this boat sheet are not contractual
Customer reviews
Information about the partner
Commercial history with Filovent
Filovent partner since 2017
Last booking with this partner in October 2017
1 booking with this partner
With Filovent, you can book your vacation by the sea with complete peace of mind
OUR COMMITMENTS
- 30 years of experience An expert dedicated to your cruise project
- Total transparency A comprehensive overview of the boats of all the yacht charter companies present at each destination
- A single concierge service A friendly and responsive service by phone or email until you return from your cruise
- Strong commitments Values that are close to our hearts
Location
Prices
Contact us for pricesGet in touch with our advisors to find your future cruise
- A specialist advisor will contact you as soon as possible
- Consult our cruise offers in your customer area
1 customer reviews,
note on 10